Prodej Rodinného domu, 193m2,Pozemek 870m2, Ondřejov u Prahy

Prodáno
Pronájem
REZERVACE
Pronajato
Již není v nabídce
Info o nabídce v RK
Lokalita
Praha-východ, Středočeský kraj, Ondřejov, Ondřejov u Prahy, 251 65
Zobrazit na mapě
Dispozice bytu
Rodinný
Dispozice domu
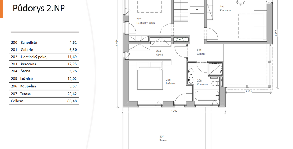
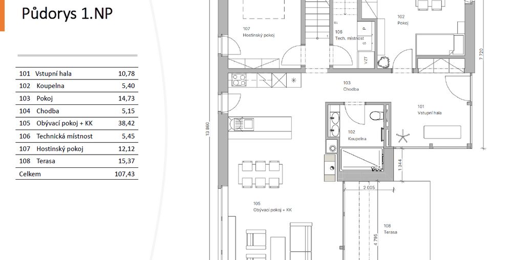
5 a více pokojů
Výměra nemovitosti

Celková podlahová plocha je 193 m2.

Pozemek má velikost 870 m2.

Náklady na provoz
Energetická třída
G - Mimořádně nehospodárná podle zákona Č. 148/2007 Sb.. Průkaz bude předložen nejpozději před uzavřením kupní smlouvy.
Zobrazit energetický štítek
Prodej novostavby 5+kk – Ondřejov u Prahy

Nabízíme k prodeji patrovou novostavbu rodinného domu o dispozici 5+kk a užitné ploše 193 m², která se nachází v klidné a vyhledávané lokalitě Ondřejov u Prahy. Dům stojí na rovinatém pozemku o rozloze 840 m² a poskytuje komfortní zázemí pro rodinný život v dosahu hlavního města.

Nemovitost je napojena na elektřinu, vodu z vlastní studny a odpad je řešen septikem nebo jímkou. Dům je moderně postavený s kvalitním zateplením a nízkými provozními náklady.

Pozemek o velikosti 840 m² nabízí dostatek prostoru pro zahradu, terasu, bazén nebo případnou menší přístavbu. Lokalita zajišťuje výbornou dopravní dostupnost do Prahy – přibližně 30 minut jízdy.

Pro více informací a domluvení prohlídky mě prosím kontaktujte.
Galerie
Nemovitost vám zprostředkuje
Libor Šindelář
733 375 116
sindelarlibor@nrgreality.cz
Profil makléře
Nechte nám na sebe kontakt a my se vám ozveme zpět
Děkujeme za zprávu, ozveme se zpět co nejdříve!
Něco se nepovedlo, zkuste to prosím ještě jednou